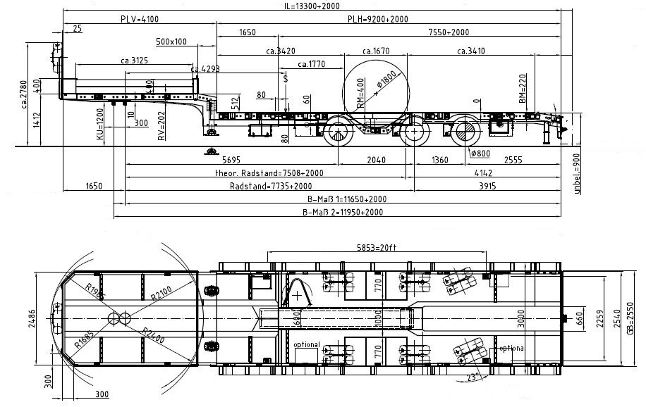
Poluprikolica s niskim utovarivačem - najam Meusburger 3-Achs-Tele-Semi mit 1 Paar Radmulden und hydr. Rampen
Objavljeno: 24dan
Objavljeno: 24dan
Leasing
Dostupno na zahtjevZu jedem gebrauchten Auflieger erhalten Sie einen aktuellen & vollständigen Inspektions- und Funktionsbericht.
Fahrgestell:
-Stabile Stahlrahmenschweißkonstruktion mit vorderer Rahmenkröpfung und ebener Ladefläche --mit Abschrägung hinten ca. 500x100 mm
-Rahmenhals 200 mm mit abgeschrägten Ecken vorne
-Schräge Ende Schwanenhals ca. 500 x 100 mm (Steigrippen auf Außenrahmen im Bereich hintere Abschrägung)
-2 Königszapfenstellungen mit auswechselbarem 2“-Königszapfen
-Außenrahmen nach außen geschlossen als Lochaußenrahmen
-Ladefläche mit ausziehbarem Zentralrahmen, ausziehbar um ca. 2.000 mm je 500 mm pneumatisch verriegelbar
-Rahmen vor und nach Teilung mit Stufe 80x80mm
-Verstärkter Rahmenausführung / Punktlast im eingeschobenen Zustand im Schwerpunkt
-Ohne ausziehbare Verbreiterungen in der Ladefläche, jedoch vorbereitet zur nachträglichem Montage (=Führungsrohre im Rahmen eingeschweißt)
-Mit Baggermulde (ohne Abdeckung), Tiefe ca. 220 mm, Breite ca. 600 mm, ca. nach 2. Achse beginnend bis Ende Fahrzeug
-1 Paar Radmulden zwischen 1. und 2. Achse Stahlabdeckungen (Abdeckungen mit -Körapurbeschichtung), Tiefe ca. 400 mm
-Unterfahrschutz = verlängertes Abschlussblech
-Fallhubstützen hinten
Rampen:
-2 Stück 2-teilige Auffahrrampen in Sonderausführung mit mechanischer Streckung
-Länge ca. 2.850 mm plus 1.850 mm, mit hydraulischem Rampenhebewerk (nur in Verbindung mit Elektrohydraulikaggregat)
-Breite ca. 800 mm
-Holzbelag
-Inkl. Steigrippen auf Auffahrrampen
-In Fahrtstellung mit Spanngurten arretierbar
-Betätigung mittels Steuerhebel hinten in FR rechts montiert
-Seitlich hydraulisch verschiebbar
Boden:
-35 mm Lärchen-Holzboden mit Alu-Omega-Profilen
Stützwinden:
-Mech. 24 to Stützwinden mit 1-Seiten-Bedienung und Schubausgleich
Achsen, Lenkung und Bereifung:
-BPW-Luftfeder-Achsen, je 10 to Achslast, Balg-Durchmesser 360 mm
-S-Nockenbremse 300/200 mm, asbestfreie Bremsbeläge
-Automatischer Gestängesteller
-Hub- und Senkeinrichtung mit Gesamthub ca. 200 mm
-2. Fahrtstellung über Kugelhahn +50mm
-1. Achse Liftachse (über EBS verkabelt), Bestätigung vollautomatisch mit mechanischer Notbetätigung über Taster am Auflieger
-3. Achse als reibungsgelenkte Nachlaufachse mit elektrischer und mechanischer Sperre
-12 Stahlscheibenräder, 10-Loch, mit Einpresstiefe mittenzentriert
-12 Reifen 245/70 R 17,5 143/141J, schlauchlos
-Inklusive Reifendrucküberwachung
Kotflügel:
-Blechkotflügel mit Clear-Pass
Bremsanlage:
-Zweileiterbremse mit EBS-E inkl. RSS
-EBS (WABCO 4S3M)
-Federspeicherfeststellbremse
-Luftanschluss gelb / rot
Elektroausstattung:
-Gemäß KZF-Gesetz
-24 Volt. 2x 7-polige und 1x 15-polige Steckdosen
-2 Stück Mehrkammer-Schlussleuchten im Abschlussblech
-Seitliche Markierungsleuchten
-1 ausziehbare Halterung für Rundumleuchte
-1 Stück 7-polige Steckdosen an Abschlussblech hinten für Überhangbeleuchtung
Lackierung:
-Stahlgranulatreinigung, Spritzverzinkung des Fahrgestelles und Grundierung
-Lackierung Fahrgestell/Radnaben/Außenrahmen in DB 7350 Novagrau
-Kunststoffteile schwarz unlackiert
-Felgen: werksilber
-Reflexstreifen seitlich und hinten in gelb
Zubehör:
-Auf dem Schwanenhals Bordwände und Rückwand steckbar ca. 400 mm hoch
-Reserveradhalterung
-Seitlicher Alu-Anfahrschutz
-4 Unterlegkeile samt Halterung
-Längliche Kennzeichenhalterung im Abschlussblech
-1 ECE-Tafel am Heck steckbar
-11 Paare ZK-Module 10t seitlich:
-2x auf dem Schwanenhals
-2x auf der Ladefläche vor dem Auszug
-7x nach dem Auszug
-Ohne Abschleppringe hinten
-Ausziehbare Warntafeln inkl. je 3 Stück Positionslampen, vorne an Sattelstützwinden und hinten vor Abschlussblech, stufenlos ausziehbar bis Ladebreite 4.500 mm
-4 Stück in Rungentaschen auf der Ladefläche steckbare Aufnahmen für Warntafeln
-6 Paare Rungentaschen seitlich für Steckrungen 100x50 mm
-2 Stück Rungentaschenquerreihen für Steckrungen 100x50 mm auf Schwanenhals von -Außenrahmen nach innen bis zum Hauptrahmen (1x vor- und 1x nach Königszapfenpositionen)
-3 Stück Rungentaschenquerreihen für Steckrungen 100x50 mm auf der Ladefläche von Außenrahmen nach innen bis zum Hauptrahmen (1x vor dem Auszug, 1x nach dem Auszug und 1x nach 3. Achse)
-2 Paar Stahlplatten in der Ladefläche für Containerverrieglungen zur Aufnahme von 1x 20ft Container
-Gummi-Schürze auf Unterfahrschutz montiert
-Vorbereitung (=Leitungsverlegung NATO-Kabel sowie Lochbild für nachträgliche Montage NATO Dose vorne am Abschlussblech sowie Halter am Fahrzeug) zur nachträglichen Monate Elektrohydraulikaggregat in Fahrtrichtung rechts hinten für evtl. Bedienung Auffahrrampen
Ova ponuda je samo informativne prirode. Molimo potvrdite pojedinosti izravno kod prodavača.
Nakon što identificirate vozilo od interesa na Truck1.eu, imate mogućnost kontaktirati prodavatelja ili putem kontakt obrasca ili izravnim pozivom trgovcu koristeći navedeni telefonski broj. Odaberite metodu koja najbolje odgovara vašim preferencijama.
Obratite se prodavatelju kako biste zatražili dodatne informacije o dostupnosti vozila, njegovom tehničkom stanju i stvarnoj cijeni, jer oglasi možda ne pružaju uvijek potpune detalje. Također, zatražite nedavne servisne zapise ili izvješća o inspekciji kako biste dobili jasniju sliku o trenutnom stanju vozila.
Iskoristite značajku usporedbe na Truck1 za procjenu sličnih vozila. To će vam pomoći procijeniti je li tražena cijena konkurentna i usklađena s tržišnim trendovima. Tražite obrasce u cijenama i značajkama kako biste donijeli informiranu odluku.
Kada kupujete vozilo putem interneta, važno je provjeriti reputaciju prodavatelja tražeći pozitivne recenzije i povijest uspješnih transakcija. Truck1-ove ikone "Status trgovca" pružaju vrijedne uvide temeljene na iskustvima s trgovcem, pomažući u procjeni pouzdanosti prodavatelja.
Kada god je to moguće, dajte prednost posjetu prodavatelju i osobnom pregledu vozila. Ako je izvedivo, dogovorite inspekciju vozila prije kupnje od strane treće strane. To može otkriti potencijalne probleme koji možda nisu vidljivi na fotografijama ili spomenuti u oglasu.
Osigurajte da potpišete detaljan ugovor o prodaji kako biste zaštitili svoja prava i potvrdili uvjete transakcije.
Nastavite s plaćanjem tek nakon potpisivanja ugovora o prodaji. Uobičajeno je dati mali predujam za rezervaciju vozila, ali to treba učiniti oprezno.
Potvrdite autentičnost prodavatelja prikupljanjem detaljnih informacija i provjerom recenzija ili ocjena prethodnih kupaca. Potražite ikone trgovaca na Truck1 kako biste identificirali verificirane prodavatelje i osigurali sigurnije iskustvo kupnje.
Usporedite cijene sličnih vozila koristeći alat za usporedbu kako biste identificirali bilo kakve neobične ponude. Budite oprezni s cijenama koje značajno odstupaju od tržišnog standarda jer mogu ukazivati na potencijalne probleme ili prijevare.
Zatražite od prodavatelja detalje o povijesti i uvjetima korištenja vozila. Pravi prodavatelj bit će transparentan i voljan podijeliti te informacije, pomažući vam procijeniti zadovoljava li vozilo vaše potrebe.
Organizirajte pregled i ispitivanje vozila te potražite znakove trošenja ili oštećenja. Razmislite o pretkupovinskoj inspekciji od strane profesionalnog mehaničara kako biste otkrili skrivene probleme i osigurali sigurnost i pouzdanost vozila.
Prije bilo koje transakcije, osigurajte da postoji detaljan ugovor o prodaji koji opisuje sve uvjete. Koristite sigurne metode plaćanja i provjerite detalje transakcije kako biste se zaštitili od prijevare.
Leasing
Dostupno na zahtjev
Ova ponuda je samo informativne prirode. Molimo potvrdite pojedinosti izravno kod prodavača.
Nakon što identificirate vozilo od interesa na Truck1.eu, imate mogućnost kontaktirati prodavatelja ili putem kontakt obrasca ili izravnim pozivom trgovcu koristeći navedeni telefonski broj. Odaberite metodu koja najbolje odgovara vašim preferencijama.
Obratite se prodavatelju kako biste zatražili dodatne informacije o dostupnosti vozila, njegovom tehničkom stanju i stvarnoj cijeni, jer oglasi možda ne pružaju uvijek potpune detalje. Također, zatražite nedavne servisne zapise ili izvješća o inspekciji kako biste dobili jasniju sliku o trenutnom stanju vozila.
Iskoristite značajku usporedbe na Truck1 za procjenu sličnih vozila. To će vam pomoći procijeniti je li tražena cijena konkurentna i usklađena s tržišnim trendovima. Tražite obrasce u cijenama i značajkama kako biste donijeli informiranu odluku.
Kada kupujete vozilo putem interneta, važno je provjeriti reputaciju prodavatelja tražeći pozitivne recenzije i povijest uspješnih transakcija. Truck1-ove ikone "Status trgovca" pružaju vrijedne uvide temeljene na iskustvima s trgovcem, pomažući u procjeni pouzdanosti prodavatelja.
Kada god je to moguće, dajte prednost posjetu prodavatelju i osobnom pregledu vozila. Ako je izvedivo, dogovorite inspekciju vozila prije kupnje od strane treće strane. To može otkriti potencijalne probleme koji možda nisu vidljivi na fotografijama ili spomenuti u oglasu.
Osigurajte da potpišete detaljan ugovor o prodaji kako biste zaštitili svoja prava i potvrdili uvjete transakcije.
Nastavite s plaćanjem tek nakon potpisivanja ugovora o prodaji. Uobičajeno je dati mali predujam za rezervaciju vozila, ali to treba učiniti oprezno.
Potvrdite autentičnost prodavatelja prikupljanjem detaljnih informacija i provjerom recenzija ili ocjena prethodnih kupaca. Potražite ikone trgovaca na Truck1 kako biste identificirali verificirane prodavatelje i osigurali sigurnije iskustvo kupnje.
Usporedite cijene sličnih vozila koristeći alat za usporedbu kako biste identificirali bilo kakve neobične ponude. Budite oprezni s cijenama koje značajno odstupaju od tržišnog standarda jer mogu ukazivati na potencijalne probleme ili prijevare.
Zatražite od prodavatelja detalje o povijesti i uvjetima korištenja vozila. Pravi prodavatelj bit će transparentan i voljan podijeliti te informacije, pomažući vam procijeniti zadovoljava li vozilo vaše potrebe.
Organizirajte pregled i ispitivanje vozila te potražite znakove trošenja ili oštećenja. Razmislite o pretkupovinskoj inspekciji od strane profesionalnog mehaničara kako biste otkrili skrivene probleme i osigurali sigurnost i pouzdanost vozila.
Prije bilo koje transakcije, osigurajte da postoji detaljan ugovor o prodaji koji opisuje sve uvjete. Koristite sigurne metode plaćanja i provjerite detalje transakcije kako biste se zaštitili od prijevare.

























